메뉴 건너뛰기
한국어
English
-
인사말
-
회사연혁
-
인허가/특허
-
오시는길
-
화생방 방호시설
-
기계설비공사
-
방폭밸브
-
역류방지밸브
-
가스차단밸브
-
가스차단접속관
-
화생방 자동제어판넬
-
방폭문/가스차단문
-
C.C.A 비치물품
-
기타
-
화생방 방호시설
-
기계설비공사
-
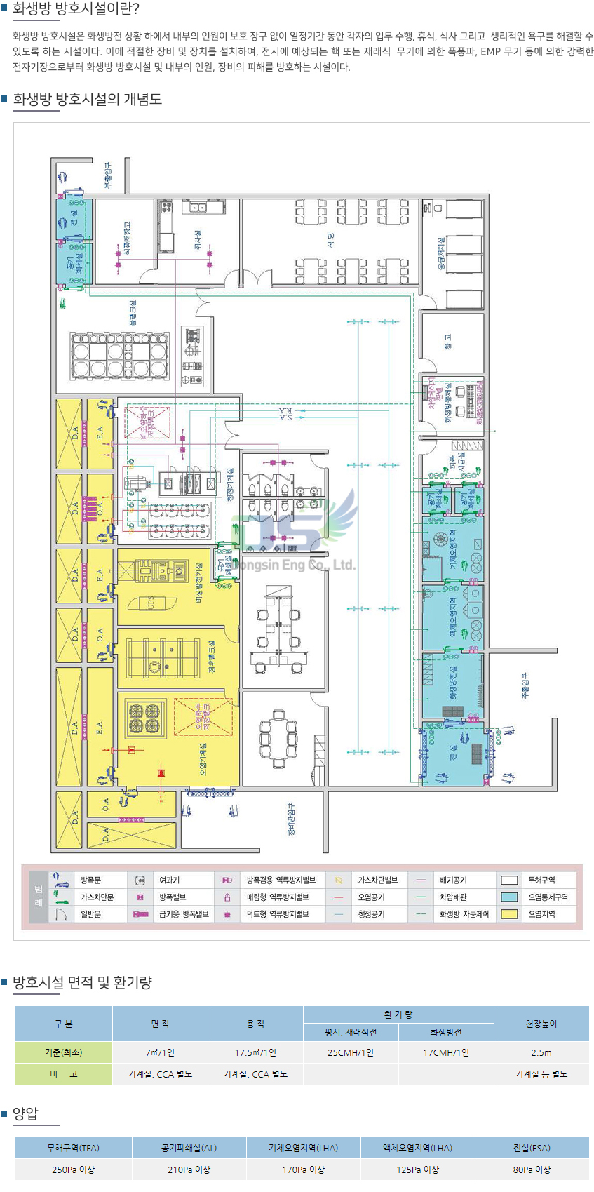
방호시설의 개념
-
방호설비 성능시험
-
기타자료
동신이엔지(주)
로그인
로그인 유지
ID/PW 찾기
회원가입
로그인
Language:한국어
English
한국어
회사소개
인사말
회사연혁
인허가/특허
오시는길
사업분야
화생방 방호시설
기계설비공사
제품소개
방폭밸브
저압용(반사압 11bar)
고압용(반사압 40bar)
역류방지밸브
가스차단밸브
가스차단접속관
저압용(반사압 11bar)
고압용(반사압 40bar)
화생방 자동제어판넬
방폭문/가스차단문
C.C.A 비치물품
기타
시공실적
화생방 방호시설
시공실적
시공사진
기계설비공사
시공실적
시공사진
기술자료
방호시설의 개념
방호설비 성능시험
기타자료
×
LANGUAGE : 한국어
English
기술자료
방호시설의 개념
방호설비 성능시험
기타자료
고객지원
SCROLL TOP