메뉴 건너뛰기
English
한국어
-
Greetings
-
History
-
Licenses/Patents
-
Address
-
CBR Defense Facility
-
Machine equipment Construction
-
Blast Valves
-
Overpressure Valves
-
Gas Tight Shut-off Valves
-
Gas Tight Wall Sleeves
-
Automatic Control Panels
-
Blast Doors / Gasting Doors
-
C.C.A Supplies
-
Others
-
CBR defense facility
-
Machine equipment construction
-
Concept of CBR defense facility
-
Sampling Test
-
Other data
로그인
로그인 유지
ID/PW 찾기
회원가입
로그인
Language:한국어
English
한국어
Company
Greetings
History
Licenses/Patents
Address
Business
CBR Defense Facility
Machine equipment Construction
Products
Blast Valves
low-pressure (11bar)
high-pressure (40bar)
Overpressure Valves
Gas Tight Shut-off Valves
Gas Tight Wall Sleeves
low-pressure (11bar)
high-pressure (40bar)
Automatic Control Panels
Blast Doors / Gasting Doors
C.C.A Supplies
Others
Construction Performance
CBR defense facility
Construction performance
Construction pictures
Machine equipment construction
Construction performance
Construction pictures
Technical Info
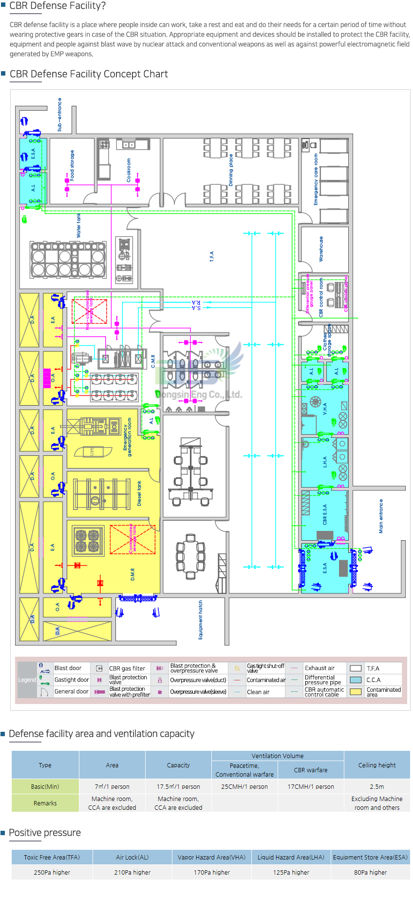
Concept of CBR defense facility
Sampling Test
Other data
×
LANGUAGE : English
한국어
Technical Info
Concept of CBR defense facility
Sampling Test
Other data
고객지원
SCROLL TOP